티스토리 뷰

조경기능사 자격증 취득을 위한 완벽한 시험일정 및 응시자격 안내
지금부터 조경기능사 시험일정 기출문제 응시자격 완벽 합격 가이드에 대한 내용을 아래에서 확인해 보도록 하겠습니다.

조경기능사 시험일정 기출문제 응시자격에 대한 핵심 정보: 2025년 조경기능사 시험은 필기시험 4회, 실기시험 5회 실시되며, 별도의 응시자격 제한이 없어 누구나 도전할 수 있습니다.
2025년 조경기능사 시험일정 완벽 정리
조경기능사 시험일정 기출문제 응시자격 완벽 합격 가이드에 대해 궁금하신 분들은 아래를 참고하세요!




조경기능사 시험일정을 미리 파악하는 것은 합격의 첫걸음이에요. 내가 직접 경험해보니 시험 일정을 놓치면 몇 개월을 더 기다려야 하는 상황이 발생할 수 있어서 정말 중요합니다.
2025년 조경기능사 시험일정은 한국산업인력공단에서 공식 발표한 자료를 기준으로 작성됐어요. 한국산업인력공단 조경기능사 시험 안내에서 최신 정보를 확인할 수 있죠.
필기시험 일정 및 접수 안내
조경기능사 필기시험은 연 4회 실시되며, 각 회차별 접수 기간과 시험 날짜가 정해져 있습니다. 2025년 필기시험 일정을 자세히 살펴보면 다음과 같아요.
제1회 필기시험 원서접수는 1월 7일부터 1월 10일까지이며, 시험일은 2월 9일 일요일입니다. 합격자 발표는 2월 27일에 있어요. 근데 이 시기가 설날 연휴와 겹칠 수 있으니 미리 계획을 세워두는 게 좋더라고요.



제2회 필기시험은 4월 14일부터 4월 17일까지 접수받고, 시험일은 5월 11일 일요일이에요. 합격자 발표는 5월 29일이죠. 봄철이라 날씨도 좋고 공부하기 딱 좋은 시기라고 생각해요.
제3회 필기시험 접수는 6월 16일부터 6월 19일까지, 시험일은 7월 13일 일요일입니다. 합격자 발표는 7월 31일이에요. 여름철이라 더위 때문에 컨디션 관리가 중요한 시기죠.
제4회 필기시험은 8월 18일부터 8월 21일까지 접수받고, 시험일은 9월 14일 일요일이며 합격자 발표는 10월 2일에 있습니다. 이 시기는 수험생들이 가장 많이 몰리는 경향이 있어요.



실기시험 일정 및 준비사항
조경기능사 실기시험은 필기시험과 달리 연 5회 실시돼요. 실기시험 일정은 필기시험 합격 후 바로 이어지는 경우가 많아서 미리 준비해두는 것이 현명합니다.
제1회 실기시험 접수는 3월 3일부터 3월 6일까지, 시험 기간은 3월 29일부터 4월 11일까지예요. 합격자 발표는 4월 24일에 있죠. 실기시험은 작업형 시험이라 날씨의 영향을 많이 받아요.
제2회 실기시험은 5월 12일부터 5월 15일까지 접수받으며, 시험 기간은 6월 7일부터 6월 20일까지입니다. 합격자 발표는 7월 3일이에요. 이 시기는 조경 작업하기에 가장 적합한 계절이라고 생각해요.
제3회 실기시험 접수는 7월 14일부터 7월 17일까지, 시험 기간은 8월 9일부터 8월 22일까지예요. 합격자 발표는 9월 4일입니다. 여름철 실기시험은 더위 때문에 체력 관리가 중요하죠.
제4회 실기시험은 9월 15일부터 9월 18일까지 접수받고, 시험 기간은 10월 11일부터 10월 24일까지입니다. 합격자 발표는 11월 6일이에요. 가을철이라 작업 환경이 쾌적한 편이에요.
제5회 실기시험 접수는 11월 10일부터 11월 13일까지, 시험 기간은 12월 6일부터 12월 19일까지이며 합격자 발표는 12월 31일에 있습니다. 연말이라 마음이 급해지는 시기이지만 차분하게 준비하는 것이 중요해요.



조경기능사 응시자격 및 시험과목 분석



조경기능사 응시자격은 다른 기능사 시험과 마찬가지로 제한이 없어요. 학력이나 경력에 상관없이 누구나 도전할 수 있다는 점이 가장 큰 장점이죠. 내가 처음 도전했을 때도 이 부분이 정말 매력적이었어요.
응시자격 요건 및 제출서류
조경기능사 응시자격은 정말 간단합니다. 나이, 학력, 경력에 관계없이 누구나 응시할 수 있어요. 하지만 접수할 때 필요한 서류는 꼼꼼히 챙겨야 해요.
원서접수 시 필요한 서류는 응시원서, 최근 6개월 이내 촬영한 반명함판 사진, 응시수수료 납부 확인서예요. 온라인 접수를 할 경우 사진을 디지털 파일로 업로드해야 하니까 미리 준비해두는 게 좋아요.



응시수수료는 필기시험 14,500원, 실기시험 26,900원입니다. 2025년 기준으로 약간 인상된 금액이에요. 결제는 신용카드나 계좌이체로 할 수 있어요.
특히 주의할 점은 온라인 접수 시 사진 규격이에요. 3.5cm × 4.5cm 크기의 칼라 사진이어야 하고, 파일 형식은 JPG여야 합니다. 배경은 흰색이나 연한 색으로 해야 하죠.
필기·실기 시험과목 상세 해설

조경기능사 필기시험은 총 4과목으로 구성되어 있어요. 조경사, 조경계획, 조경시공, 조경관리 과목이 출제되죠. 각 과목당 20문제씩 총 80문제가 출제되며, 시험 시간은 2시간입니다.
조경사 과목에서는 우리나라와 외국의 조경 발달사, 조경 양식의 변천사 등이 주로 출제돼요. 내가 공부해보니 단순 암기보다는 시대적 배경과 연결해서 이해하는 것이 효과적이더라고요.
조경계획 과목은 조경 설계의 기본 원리, 식재 계획, 공간 구성 등이 나와요. 실무와 가장 밀접한 관련이 있는 과목이라고 생각해요. 특히 식물의 특성과 배치 원리는 반드시 숙지해야 할 부분이에요.
조경시공 과목에서는 토공사, 석공사, 포장공사, 급배수공사 등의 시공 기술이 출제됩니다. 공사 순서와 시공 방법을 정확히 알아야 해요. 그거 말고도 안전관리 규정도 중요한 출제 포인트죠.



조경관리 과목은 식물 관리, 시설물 관리, 병충해 방제 등이 주요 내용이에요. 특히 계절별 관리 방법과 식물의 생리적 특성을 이해하는 것이 핵심입니다.
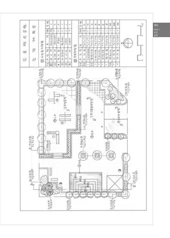
실기시험은 '조경 작업'이라는 하나의 과목으로 진행돼요. 시험 시간은 4시간이며, 주어진 도면에 따라 실제 조경 작업을 수행해야 합니다. 평면도 해석, 식재 작업, 시설물 설치 등이 포함되죠.
조경기능사 기출문제 활용 합격 전략



조경기능사 기출문제는 합격의 열쇠라고 해도 과언이 아니에요. 내가 실제로 합격할 때도 기출문제 분석이 가장 큰 도움이 됐어요. 단순히 문제만 푸는 것이 아니라 출제 경향을 파악하는 것이 중요하죠.



기출문제 분석을 통한 출제 경향
최근 5년간 조경기능사 기출문제를 분석해보면 몇 가지 뚜렷한 경향이 나타나요. 첫 번째로는 실무 중심의 문제가 증가하고 있다는 점이에요. 이론적인 내용보다는 현장에서 직접 활용할 수 있는 지식을 묻는 문제가 많아졌어요.
조경사 과목에서는 한국 전통 조경의 특징과 현대 조경 기법의 비교가 자주 출제돼요. 특히 궁궐 조경과 사찰 조경의 차이점, 전통 조경 요소의 특성 등이 단골 문제죠. 2024년 기출문제에서는 창덕궁 후원의 조경 특징이 3회 연속 출제되기도 했어요.
조경계획 과목에서는 식물의 생태적 특성과 조경 효과에 관한 문제가 증가하고 있어요. 단순히 식물명을 암기하는 것이 아니라 어떤 환경에서 어떤 식물을 사용해야 하는지를 묻는 문제가 많아졌죠.
조경시공 과목은 최신 시공 기술과 안전 관리 규정이 강화되고 있어요. 특히 친환경 시공법과 스마트 조경 기술에 관한 문제가 새롭게 등장하고 있어요. 2025년부터는 이런 트렌드가 더 강화될 것 같아요.
조경관리 과목에서는 기후변화와 관련된 식물 관리 기법이 주목받고 있어요. 폭염이나 한파 등 극한 기후에 대비한 관리 방법, 물 절약형 관리 기법 등이 자주 출제되고 있죠.
실전 합격 노하우 및 학습법
조경기능사 시험 준비할 때 가장 중요한 것은 체계적인 학습 계획이에요. 내가 실제로 3개월 만에 합격했던 방법을 공유해볼게요.
조경기능사 시험일정 기출문제 응시자격 완벽 합격 가이드에 대해 더 알고싶은 내용은 아래를 확인하세요!

두 번째 달부터는 본격적으로 기출문제를 풀기 시작했어요. 최근 5년간 기출문제를 3회 이상 반복해서 풀었죠. 틀린 문제는 별도로 정리해서 시험 전날까지 계속 봤어요.
세 번째 달에는 실전 모의고사와 함께 실기시험 준비도 병행했어요. 실기시험은 필기 합격 후 바로 이어지니까 미리 준비하는 것이 좋아요.



실기시험 준비할 때는 실제 도구를 사용한 연습이 중요해요. 측량 도구 사용법, 식재 기법, 포장 방법 등을 반복 연습했죠. 특히 시간 관리가 정말 중요해요. 4시간 안에 모든 작업을 완료해야 하니까요.
조경기능사 시험일정 기출문제 응시자격 완벽 합격 가이드에 대한 보다 자세한 내용은 아래 내용을 확인해보세요!

시험 당일에는 컨디션 관리가 가장 중요해요. 충분한 수면과 가벼운 아침 식사를 하고, 시험장에는 30분 정도 일찍 도착하는 것이 좋아요. 긴장하지 말고 그동안 준비한 실력을 믿고 차분하게 문제를 풀어나가면 돼요.
마지막으로 강조하고 싶은 것은 포기하지 않는 마음가짐이에요. 조경기능사는 충분히 도전할 만한 자격증이고, 체계적으로 준비하면 누구나 합격할 수 있어요. 내가 그랬듯이 여러분도 꼭 좋은 결과 있으시길 바라요!
조경기능사 시험일정 기출문제 응시자격에 대한 정보가 도움이 되셨나요? 이 자격증은 조경 분야로의 첫 발을 내딛기에 정말 좋은 선택이라고 생각해요. 앞으로도 계속해서 최신 정보를 업데이트해서 수험생 여러분에게 도움이 되는 내용을 제공하도록 하겠습니다.
볼만한 글






